ID CP1728415

Vanzare Vila de exceptie - Domenii

ID CP1728415

2,590,000 €

Casă / Vilă cu 13 camere de vânzare
Domenii, Bucuresti
800 mp
2012

Ned Com Imobiliare va propune spre vanzare un imobil impresionant situat in una din cele mai prestigioase zona ale Capitalei, zona Domenii.

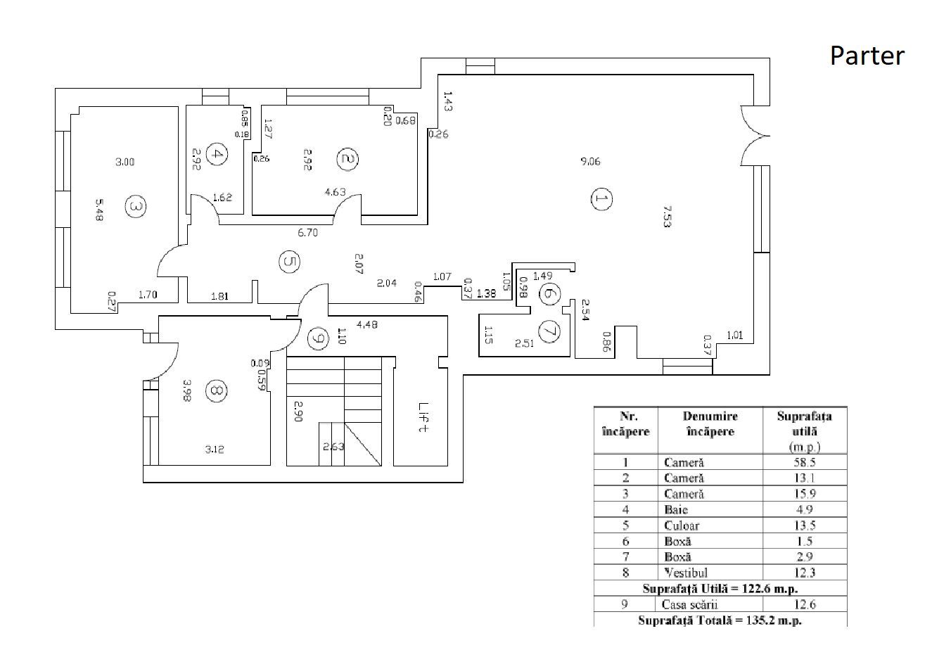
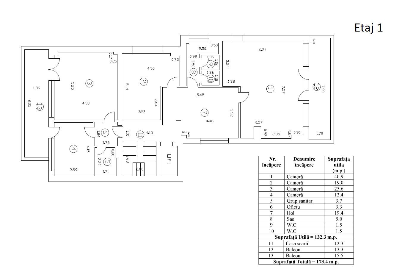
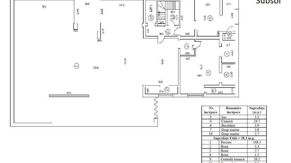
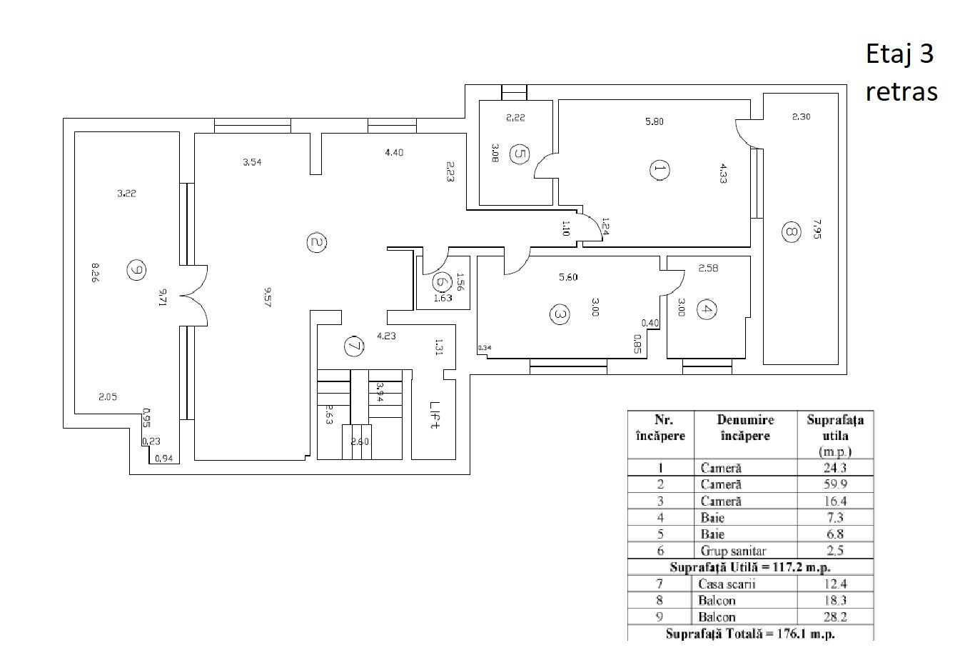
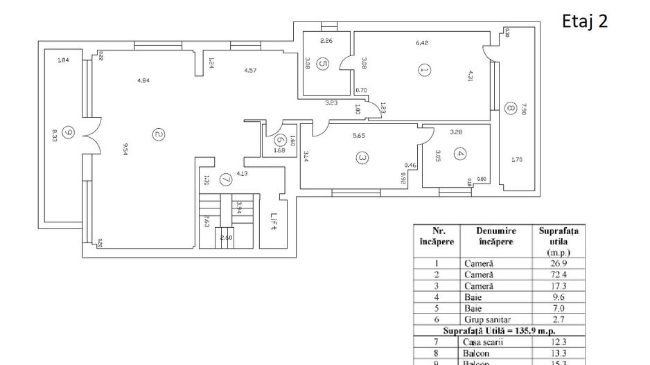
Vila este construita in anul 2012, si compusa din subsol, parter, doua etaje si etajul 3 retras*. ,,cu Lift.

Se desfasoara pe suprafata (construita) desfasurata de 1126mp si masoara aproximativ 135mp utili pe nivel, respectiv 175mp totali (inclusiv balcoane) pe nivel. Se poate vinde si fiecare etaj,separat.

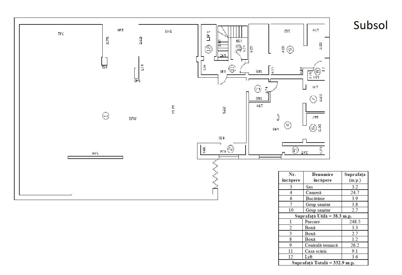
La subsol avem suprafata de 332mp, ce cuprinde parcarea dedicata de 250mp si alte spatii administrative.

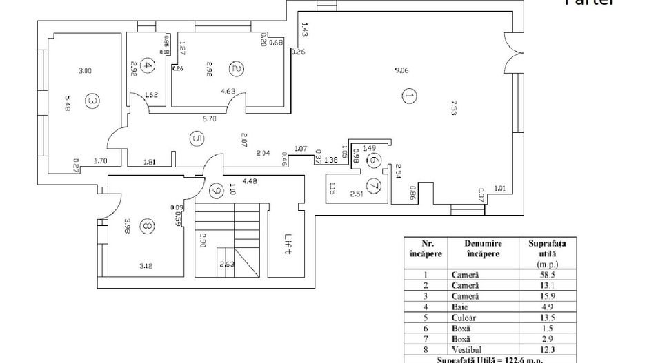
La parter avem un spatiu de aproape 60mp open space, o baie si alte doua camere, in mare parte destinate momentan spatiului de birou.

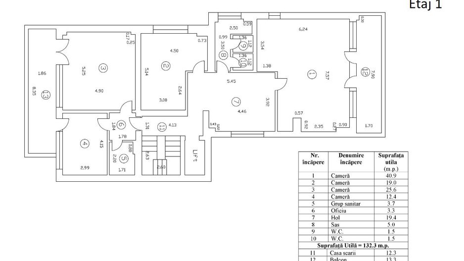
La etajul 1, se pastreaza acelasi format, in schimb camera open space este inchisa si gasim aici si un balcon.

Pe acest nive, mai gasim si un apartament de 2 camere cu terasa si baie.

Nivelurile 1, 2 si 3 au fiecare cate 3 grupuri sanitare.

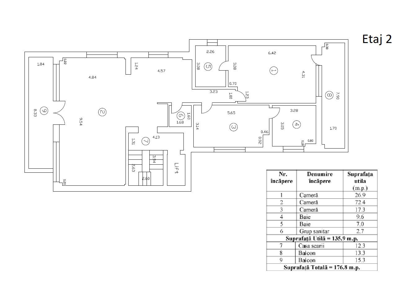
La al doilea nivel gasim o zona mare open space 72mpu, cu terasa, precum si alte doua camere cu acces la o alta terasa si grupuri sanitare, iar nivelul al 3-lea ofera un apartament de 3 camere cu doua terase mai mare fata de celelalte niveluri (47mp in total).

* un etaj retras reprezinta un etaj cu suprafetele exterioare - spre ex. balcoane sau terase - mai spatioase, si cu suprafetele interioare - camere etc - mai restranse, fata de etajele inferioare

Citește mai mult

  • Număr camere
    13
  • Dormitoare
    9
  • Număr bucătării
    1
  • Număr băi
    9
  • Geam la baie
    Da
  • Număr balcoane
    6
  • Număr garaje
    1
  • Număr locuri parcare
    12
  • Disponibilitate
    Imediat
  • Tip casă
    Individual
  • Stare interior
    Ultrafinisat
  • Anul finisării
    2012
  • Suprafață utilă
    800 mp
  • Suprafață construită
    1,126 mp
  • Suprafață construită la sol (Amprentă)
    185.0 mp
  • Suprafață teren
    470 mp
  • Deschidere
    15 m
  • Acoperiș
    Țiglă
  • Stadiu construcție
    Finalizată
  • An construcție
    2012
  • Construcție nouă
    Da
  • Tip construcție
    Beton
  • Număr etaje clădire
    2
  • Număr etaje retrase
    1
  • Număr subsoluri
    1

Facilități

Acoperiș
Aer condiționat
Apă
Apometre
Aragaz
Boxă la subsol
Bucătărie mobilată
Bucătărie utilată
Cabină de duș
Calorifere
Canalizare
CATV
Centrală proprie
Contor căldură
Contor electric
Contor gaz
Curent
Curte
Dressing
Faianță
Ferestre PVC
Fitness
Frigider
Gaz
Geamuri termopan
Gresie
Hotă
Iluminat stradal
Internet
Izolație exterioară
Jaluzele verticale
Lift
Magazie
Mașină de spălat rufe
Mijloace de transport în comun
Mobilat lux
Mochetă
Parcare biciclete
Parchet
Podele granit
Rulouri / obloane electrice
Senzor de fum
Spălătorie
Spații agrement
Străzi asfaltate
Supraveghere video
Tapet
Telefon
TV
Ușă intrare metal
Uși interior lemn
Uși interior sticlă
Vopsea lavabilă
WC Serviciu
Wireless
Cristiana Nicorici - Ned Com Imobiliare
Cristiana Nicorici
Consilier Imobiliar

+40741124400


Solicită chiar acum o vizionare
Telefon
Sună acum Solicită vizionare
Necesare:

Site-ul nu poate funcționa corect fără aceste cookie-uri. Vezi cookie-urile

Statistică:

Strângem statistici anonime despre voi, vizitatorii unici, pentru a vă îmbunătăți experiența dumneavoastră. Vezi cookie-urile

Marketing:

Pentru a ne promova mai eficient serviciile noastre, folosim cookies pentru a vă identifica și a vă oferi proprietăți și servicii personalizate. Vezi cookie-urile

Acest site folosește cookies, află detalii. Alege ce tipuri de cookies dorești să permitem: