ID CP1931417

Vila P+1 Bragadiru - Est

Această proprietate nu mai este activă,
te invităm să vizualizezi proprietăți similare

ID CP1931417

145,000 €

Casă / Vilă cu 4 camere de vânzare
Est, Bragadiru
133 mp
2022

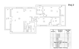
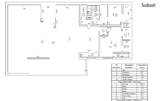
Ned Com Imobiliare va propune spre vanzare o vila P+1, construita in Bragadiru, in apropiere de strada Sperantei.

Vila se desfasoara pe suprafata totala de 140mp si este divizata in parter (living, bucatarie, grup sanitar) si etaj (3 dormitoare, dressing, baie) si se ofera finisata la cheie.

Terenul, cu suprafata de 250mp, dispune de toate utilitatile: apa, gaz, canalizare si curent.LIBERA

Citește mai mult

  • Număr camere
    4
  • Dormitoare
    3
  • Număr bucătării
    1
  • Număr băi
    2
  • Geam la baie
    Da
  • Disponibilitate
    Imediat
  • Tip casă
    Individual
  • Stare interior
    Semifinisat
  • Anul finisării
    2022
  • Suprafață utilă
    133 mp
  • Suprafață construită
    140 mp
  • Suprafață construită la sol (Amprentă)
    85 mp
  • Suprafață teren
    150 mp
  • Acoperiș
    Țiglă
  • Stadiu construcție
    Finisat
  • An construcție
    2022
  • Construcție nouă
    Da
  • Tip construcție
    Beton
  • Imobil consolidat
    Da
  • Număr etaje clădire
    1

Facilități

Acoperiș
Apă
Apometre
Calorifere
Canalizare
CATV
Contor căldură
Contor electric
Contor gaz
Curent
Curte
Faianță
Ferestre PVC
Gaz
Geamuri termopan
Iluminat stradal
Internet
Izolație exterioară
Mijloace de transport în comun
Nemobilat
Străzi asfaltate
Telefon
Ușă intrare metal
Vopsea lavabilă
WC Serviciu
Necesare:

Site-ul nu poate funcționa corect fără aceste cookie-uri. Vezi cookie-urile

Statistică:

Strângem statistici anonime despre voi, vizitatorii unici, pentru a vă îmbunătăți experiența dumneavoastră. Vezi cookie-urile

Marketing:

Pentru a ne promova mai eficient serviciile noastre, folosim cookies pentru a vă identifica și a vă oferi proprietăți și servicii personalizate. Vezi cookie-urile

Acest site folosește cookies, află detalii. Alege ce tipuri de cookies dorești să permitem: